De mogelijke nieuwe functies zoals een workshopruimte, een restaurant en een multifunctionele ruimte hebben we verder uitgewerkt in een vierkantemeterstudie. Deze studie vormt samen met enkele andere uitgangspunten de basis voor het nieuwe ontwerp.


uitgangspunten

Uit de vierkantemeterstudie bleek al snel dat het huidige kasteel te klein is om alle nieuwe functies te faciliteren. Dit betekent dus dat
het kasteel uitgebreid dient te worden met ca. 600m². Op de stedenbouwkundige ontwerpschets is te zien dat we ervoor
gekozen hebben het kasteel aan de Noord-Oostzijde uit te breiden
met een nieuw volume.



In de schets met hierop de architectonische uitgangspunten is te
zien dat er een minimalistisch volume aan het kasteel gekoppeld
wordt. Ook worden er nog enkele andere belangrijke
uitgangspunten beschreven.


Ook op het gebied van de constructie hebben we enkele uitgangspunten in een schets verwerkt. Er wordt een duurzame
en flexibele constructie gebruikt van gelamineerde kolommen en
liggers.



Het programma van eisen bevat enkele belangrijke eisen op het gebied van de duurzaamheid. Om aan al deze eisen te voldoen is
het belangrijk deze zo vroeg mogelijk in de ontwerpfase mee te nemen. Belangrijke uitgangspunten die grote invloed hebben op
het ontwerp hebben we dan ook in een schets vastgelegd.



Aansluitend op de uitgangspunten op het gebied de duurzaamheid hebben we ook gekeken naar een manier om installaties in zowel
het kasteel als de uitbreiding aan te brengen.



plattegronden

De nieuwe plattegronden laten zien dat het kasteel en de
uitbreiding nauw met elkaar samenwerken. De centrale gangstructuur van het kasteel leidt de bezoeker naar de grote multifunctionele ruimte. Links langs het kasteel loopt een
hellingbaan richting de tweede ingang. Deze tweede ingang zorgt ervoor dat de diverse ruimtes zelfstandig kunnen functioneren en
dat ook het kasteel integraal toegankelijk is.



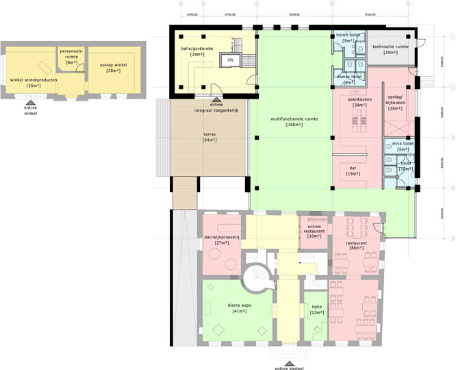
Op de begane grond van het kasteel zijn de representatieve
functies zoals de wijnproeverij, het restaurant en een kleine expositieruimte ondergebracht. De ondersteunende functies zoals toiletten, keuken en technische ruimte bevinden zich in de
aanbouw. Op deze manier worden de karakteristieke ruimtes van
het kasteel gebruikt en wordt voorkomen dat er elementen met monumentale waarde verloren gaan. Ook kan de hoeveelheid
nieuwe leidingen, wanden en plafonds in het kasteel tot een minimum worden beperkt. Gezien het een Kenniscentrum Slow
Food is staat de keuken centraal in het gebouw. De keuken is bovendien ‘open’ uitgevoerd waardoor er contact is met de grote multifunctionele ruimte.

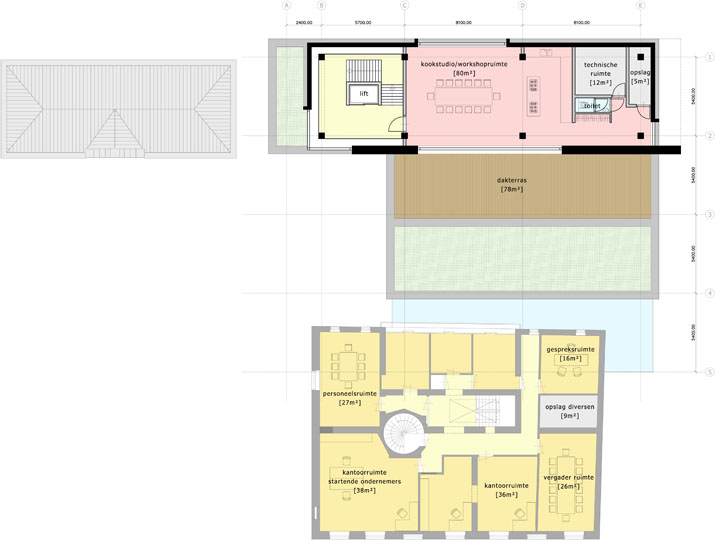
Op de verdieping van de uitbreiding bevindt zich een
workshopruimte die gebruikt kan worden voor kookworkshops. Vanuit deze ruimte is er toegang tot een groot terras met uitzicht
op het landgoed. Verder bevind zich er een toilet, opslagruimte en een tweede technische ruimte. De verdieping van het kasteel is gereserveerd voor, nog nader in te vullen, kantoorruimtes.


gevels en doorsneden

Gelijktijdig met het ontwerpen van de plattegronden hebben we gekeken naar de gevels. Ons idee hierbij was het creëren van een minimalistische uitbreiding om het contrast oud-nieuw te versterken. Er is dan ook gekozen voor strakke lijnen en eenvoudige vormen.

De zuid-oostgevel (voorgevel) blijft vrijwel ongewijzigd. Links en rechts van het kasteel steekt de uitbreiding uit zodat de nieuwsgierigheid wordt gewekt van voorbijgangers en bezoekers.
De noord-oostgevel (rechter zijgevel) is een vrij gesloten gevel omdat deze gevel uitkijkt op het industriegebied Beatrixhaven.
Het contrast tussen oud en nieuw is duidelijk te zien en wordt benadrukt door de glazen koppeling. Ook de noord-westgevel (achtergevel) is vrij gesloten. Om het gebouw aan de achterkant
niet te hoog en te massief te laten lijken hebben we ervoor
gekozen om de verdieping te voorzien van een houten afwerking. Hiervoor wordt, in het kader van de duurzaamheid, sloophout gebruikt. De zuid-westgevel is georiënteerd op het zuiden en kijkt
uit op het landgoed. Om optimaal gebruik te maken van de
passieve zonne-energie en het uitzicht hebben we hier voor veel
glas gekozen.



Uit de doorsnede blijkt dat de begane grondvloer van het kasteel
en de aanbouw op een gelijk niveau liggen. Dit heeft als gevolg dat er onder het gebouw ruimte ontstaat voor een kruipruimte. Deze kruipruimte zal gebruikt worden als installatieruimte waardoor het gebouw zeer flexibel wordt. Een ander voordeel is dat ook het kasteel integraal toegankelijk wordt (een van de eisen uit het programma van eisen).



impressie

De 3D-impressie geeft een goed beeld van het ontwerp. Te zien is dat op sommige plaatsen de vloer naar buiten steekt en boven het maaiveld zweeft. Ook laat de impressie zien dat er een verschil in dikte bestaat tussen de gestucte wanden en de wanden met een houten afwerking.



materialen

Voor het plangebied als totaal wordt een zo laag mogelijke inzet
van materialen nagestreefd; waar mogelijk zelfs een materiaal neutraliteit of overschot. Dat komt neer op het reduceren van materiaalgebruik en het gebruiken van hernieuwde of hernieuwbare materialen voor alle mogelijke toepassingen. Eventueel kan zelfs
het plangebied materiaalproducerend zijn. Hierdoor zal de kringloop volledig nul zijn. Het programma van eisen stelt dat 75% van de toegepaste materialen en producten hernieuwde (gerecyclede) of hernieuwbare materialen te zijn.



Voor zowel de binnen- als buitenafwerking is gekozen voor
leemstuc. Hiermee is het mogelijk oppervlaktes strak af te werken zodat de strakke en eenvoudige vormen versterkt worden. Leem is een  natuurvriendelijk materiaal zonder chemische toeslagstoffen en geeft een natuurlijke uitstraling. Het is toepasbaar op vrijwel alle ondergronden en heeft een vochtregulerende werking.

Een ander veel toegepast materiaal is hout. De skeletconstructie wordt gemaakt van gelamineerde houten liggers en kolommen met hierop Kerto-Ripa systeemvloeren. Dit zijn geprefabriceerde houten elementen voor constructieve toepassingen. De gevel is ook opgebouwd uit geprefabriceerde houten gevelelementen. De elementen zijn opgebouwd uit Finnjoist liggers met hierop houten constructieve Pavatex Isolair platen. Aan de binnenzijde worden de platen afgewerkt met leemstuc Tierrafino Base met hierop een Tierrafino finisch eindlaag en aan de buitenzijde met Trasskalk-stucwerk Leichtputz met hierop Keim Royalan mineraal verf. Een deel van de gevels is niet afgewerkt met Trasskalk maar met sloophout
uit de wijken Limmel en Nazareth.

Als dakafwerking is er gekozen voor een Optigroen Natuurdak. Dit dak zorgt voor een ecologisch hoogwaardige begroeningsvorm. Dit betekent een grote verscheidenheid in flora en fauna, een habitat voor wilde bijen en vlinders en een langdurige en kleurige bloei.


kringlopen energie en water

In het waterconcept dient het sluiten van sluiten van de waterkringloop het uitgangspunt te zijn. De eerste en tevens belangrijkste stap hierbij is het beperken van de vraag naar water. Dit kan bijvoorbeeld door middel van waterbesparende kranen en toiletten. Voor WC-spoeling, sproeien van de tuin, wassen van de auto en schoonmaak wordt bovendien geen drinkwater maar regenwater gebruikt met enkel een voorzuivering. Dit kan maar
liefst een besparing opleveren van 40% op het leidingverbruik. Belangrijk is dan wel dat er genoeg regenwater voor handen is.
Wij hebben er dan ook voor gekozen om het gehele groene dak tevens in te zetten als regenwateropvang. Het sedumdak geeft het regenwater, na filtering, gelijkmatig af aan een opslagvat. Grijs, geel en zwart afvalwater wordt door middel van een septic tank, vetafscheider, slibvangput en helofytenfilter gezuiverd zodat het geloosd kan worden op het oppervlaktewater of gebruikt
kan worden in de landbouw (kasteeltuin).



De meest energiezuinige vorm van een gebouw is een gebouw dat helemaal geen energie verbruikt. Dit is dan ook ons uitgangspunt geweest bij het bedenken van het energieconcept. De energie-
kringloop is gebaseerd op de Trias Energetica. Dit betekent dat allereerst de vraag geminimaliseerd wordt. Vervolgens wordt er gekeken naar het gebruiken van reststromen en het gebruiken van duurzame bronnen. Het gebruik van fossiele energie dient zo veel mogelijk voorkomen te worden. Onderstaande afbeelding laat het energieconcept zien in de wintersituatie. Voor de opwekking van energie is er gekozen voor windenergie. Zonnepanelen bleken, gezien het rendement op de locatie en de hoge investeringskosten, minder rendabel dan windturbines te zijn.



duurzaamheidsscores

Om een duidelijk beeld te krijgen van de mate van duurzaamheid hebben we enkele duurzaamheidsindicatoren bepaald.
GPR Gebouw – Energie                             8,1
GPR Gebouw – Milieu                                8,0
GPR Gebouw – Gezondheid                      8,4
GPR Gebouw – Gebruikskwaliteit              8,7
GPR Gebouw – Toekomstwaarde              8,7
EPC                                                           0,79
gemiddelde Rc-waarde gebouw                8,38 m²K/W
energieplus                                               1,44 kWh per m² VG
gewicht gebouw                                        670 Kg/m² BVO
% hernieuwbare materialen                      53,3%
% hernieuwde materialen                         22,2%